Master’s Degree Design Studio Project, 2020

A Threshold Between Perpetuity & Ephemerality
‘Affordable Housing’ is a widely debated topic in the field of built environment, and usually being discussed extensively to correlate with politics and economy as well. Realizing the existing issues and symptoms of affordable housing scheme may dependent to multi-scalar factors and systematic failures, therefore the project begins with the emphasis on contextual approach and reshaping of social fabric to rectifying the controversies and changes. Incorporating a bottom-up process, the design addresses different concern in a formulated sequence: context – community – programme – urban strategies – design objectives.

Situated in the center of Kampung Kerinchi, the site is originally an existing bazaar that serves the surrounding neighbourhood as a community locus. The journey travel from Federal Highway to the site implies a transition of threshold- from the towes of Bangsar South mixed use developments, to the congested public housing district and village with many informal settlements. These ‘thresholds’ are an embodiment of difference in human activities, community living, programme compositions and urban morphology. So, how would the proposed design could poses itself in this context as part of the ‘threshold’?


To encapsulate these existing qualities, the project addresses the potential users to cultivate a collective community which celebrates pluralism. Affordable housing could possibly being remodeled with multi-layering of programmes to involve different groups of community, in order to shape a cross-learning and collaborative environment that empowering people break free from the vicious cycle of financial difficulties. The programmatic revamp and micro-economy of affordable housing becomes a notion to innovate in response to counter against the monotonous position of current affordable housing design, which is seemingly ‘just a place of sheltering’.


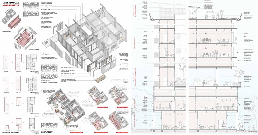
Within an urban context, the design implements the concept of ‘threshold’ as part of the urban design strategies, design details and interventions. The thresholds can be interpreted as a transitional space, feature or programme where the ‘ephemerality’ happens- the conjunction of people, unexpected rendezvous, temporal events and daily shifting of activities. Whereas this set of strategies become the framework, portraying the ‘perpetuity’ of architecture that upholds the design objective- managing change. This duality shares a symbiotic relationship to realize an adaptive model of affordable housing.
Conclusively, the proposed affordable housing scheme is an alternative to current housing models, manifesting an egalitarian ideology to cultivate a more open-minded, tolerate and enlightened community. This diverse yet resilient community formed based on the social coherence and collaborative manner, shall thrive through the harsh circumstances and difficult times- realizing their own qualities to emerge for future endeavours.




